A12 63.5m2
2h+kt+s | 3. kerros | Perhosenkatu 7, 21280 Raisio
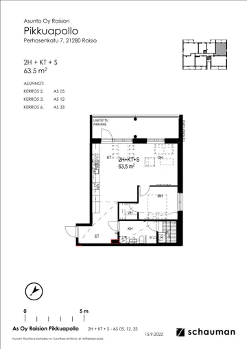
Huoneiston kuvaus
Tilava saunallinen kaksio on suunniteltu sujuvaan arkeen. Makuuhuoneen yhteydessä oleva vaatehuone tarjoaa runsaasti säilytystilaa, kun taas eteiseen voit laittaa esimerkiksi kauniin lipaston tai parkkeerata lastenvaunut.
Avara avokeittiö-olohuone kutsuu oleskelemaan ja rentoutumaan. Tänne saat vaikka etätyöpisteen, ison ruokapöydän ja kutsuvan sohvaryhmän. Kulmahuoneiston ikkunoista avautuu näkymä itään, ja parvekkeella nautit aamuauringosta kahvikupillisen kera.
Etu
Nappaa rahanarvoinen etu ja säästä tuhansia euroja!
Saat 3% alennusta asunnon velattomasta hinnasta. Alennus tarkoittaa isoa säästöä, kuten esimerkiksi:
- 32,5 m² yksiö: alennettu velaton hinta 119 650 € (norm. velaton hinta 123 350 €) - säästät 3700 €
- 50,0 m² kaksio: alennettu velaton hinta 184 106 € (norm. velaton hinta 189 800 €) - säästät 5694 €
- 77,0 m² kolmio: alennettu velaton hinta 239 299 € (norm. velaton hinta 246 700 €) - säästät 7401 €
Etu on voimassa 2.3.2026 saakka. Ei varausmaksua. Oikeudet muutoksiin pidätetään.
Asunnon hintatiedot
Myyntihinta
Velaton hinta
Lainaosuus
Vuokratontin lunastushinta
Hoitovastike
301.63 €/kk
Pääomavastike, korko + lyhennys
840.45 €/kk
Tontin vuokravastike
0.00 €/kk
Kaikki vastikkeet yhteensä
1 142.08 €/kk
Tiesithän tämän vastikkeista?
- Mikä on hoitovastike? Hoitovastikkeella katetaan taloyhtiön ylläpitokustannuksia, kuten esimerkiksi isännöintiä ja kiinteistöhuoltoa. Hoitovastiketta maksaa taloyhtiön jokainen osakas ja kustannus jakautuu huoneiston pinta-alan perusteella.
- Mikä on pääomavastike? Pääomavastiketta peritään osakkailta yhtiön rakennusaikaisen pitkäaikaisen lainan lyhennyksiin ja korkoihin. Jos huoneistokohtaisen yhtiölainaosuuden maksaa pois, ei pääomavastiketta peritä. Pääomavastiketta peritään yhtiöjärjestyksen mukaisella jyvitetyllä vastikeluvulla.
- Mikä on tontinvuokravastike? Tontinvuokravastike on asunnolle kohdistuva osuus kuukausittaisesta tontinvuokrasta, mikäli huoneistokohtaista osuutta valinnaisesta vuokratontista ei ole lunastettu. Tontinvuokravastiketta peritään tontin pinta-alan perusteella.
- Mikä on yhtiövastike? Yhtiövastike on vakiintunut termi, joka pitää sisällään kaikki kuukausittaiset vastikkeet.
Kuukausittaiset kokonaiskustannukset, eli yhtiövastike, muodostuvat eri vastikkeiden yhteenlasketusta summasta. Kokonaiskustannuksiin vaikuttaa etenkin se, maksaako huoneistokohtaisen yhtiölainaosuuden pois tai lunastetaanko tonttia. Mikäli sinulla on kysymyksiä, asuntomyyjämme vastaavat mielellään sekä auttavat asunnon ostamisen jokaisessa vaiheessa.



















